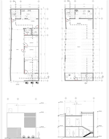
Alpha & Omega Church, Cabos San Lucas, BCS, Mexico.

YEAR:2022

DESIGNED BY: Ismael Caxnajoy

DRAWN BY: Ismael Caxnajoy

SOFTWARE: AutoCAD, and Sketchup.

The small church project focuses on a minimalist architectural facade that aims to maximize the use of every small space available on the site. This minimalist approach reflects a modern and elegant aesthetic and represents a significant challenge for the design. The main challenge of the project was to find creative solutions to make the most of every corner of the land, thus achieving a harmonious integration of the architecture with the surrounding environment. The project also proposed using regionally sourced materials to reduce construction costs.