



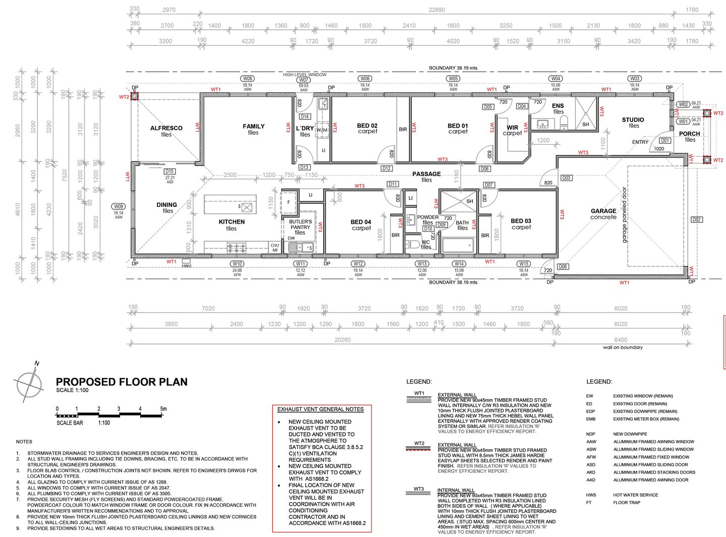
Brookside House, Athelstone, Adelaide, South Australia, Australia.
YEAR:2023
DESIGNED BY: Ismael Caxnajoy
DRAWN BY: Ismael Caxnajoy
SOFTWARE: AutoCAD.
As an architect draftsperson, my role consisted of creating architectural drawings and detailed drawings and gathering all the necessary information. My goal was to ensure that the project met the Designer’s requirements and established quality standards in the drawing process; I was also in charge of applying the changes requested by the Designer.


