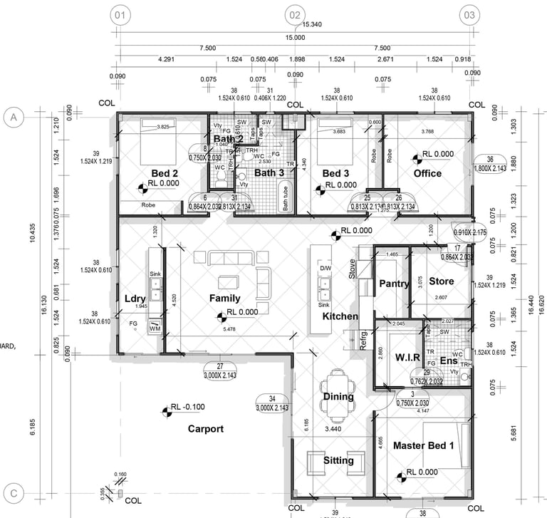
Wes Speight´s House, Lake EachemCairns, Queenslad, Australia.
YEAR:2022
DESIGNED BY: Ismael Caxnajoy
DRAWN BY: Ismael Caxnajoy
SOFTWARE: Revit, Enscape & Photoshop.
This residential project was designed in a square and Health shape to house a family of four, with a primary focus on a metal structural system. This structural choice served as a basis for organizing the living spaces efficiently, emphasizing both the functionality of the space within. In addition, natural light and ventilation were maximized by increasing the number and size of windows throughout the house, which created a brighter and more open atmosphere that enhances the living experience.






Renders






